(781) 862-6168
One Cranberry Hill, Lexington, Massachusetts 02421
MENU
Listings
All Listings
Flex
Industrial
Industrial Outdoor Storage
Investment Properties
Land
Multifamily
Retail
Recent Transactions
Sold
Leased
What we do
Property Representation
Tenant Representation
Property Valuation
Property Management
Our Firm
About Us
Our Team
Careers
CORFAC International Affiliation
News & Events
Contact
Listings
All Listings
Flex
Industrial
Industrial Outdoor Storage
Investment Properties
Land
Multifamily
Retail
Recent Transactions
Sold
Leased
What we do
Property Representation
Tenant Representation
Property Valuation
Property Management
Our Firm
About Us
Our Team
Careers
CORFAC International Affiliation
News & Events
Contact
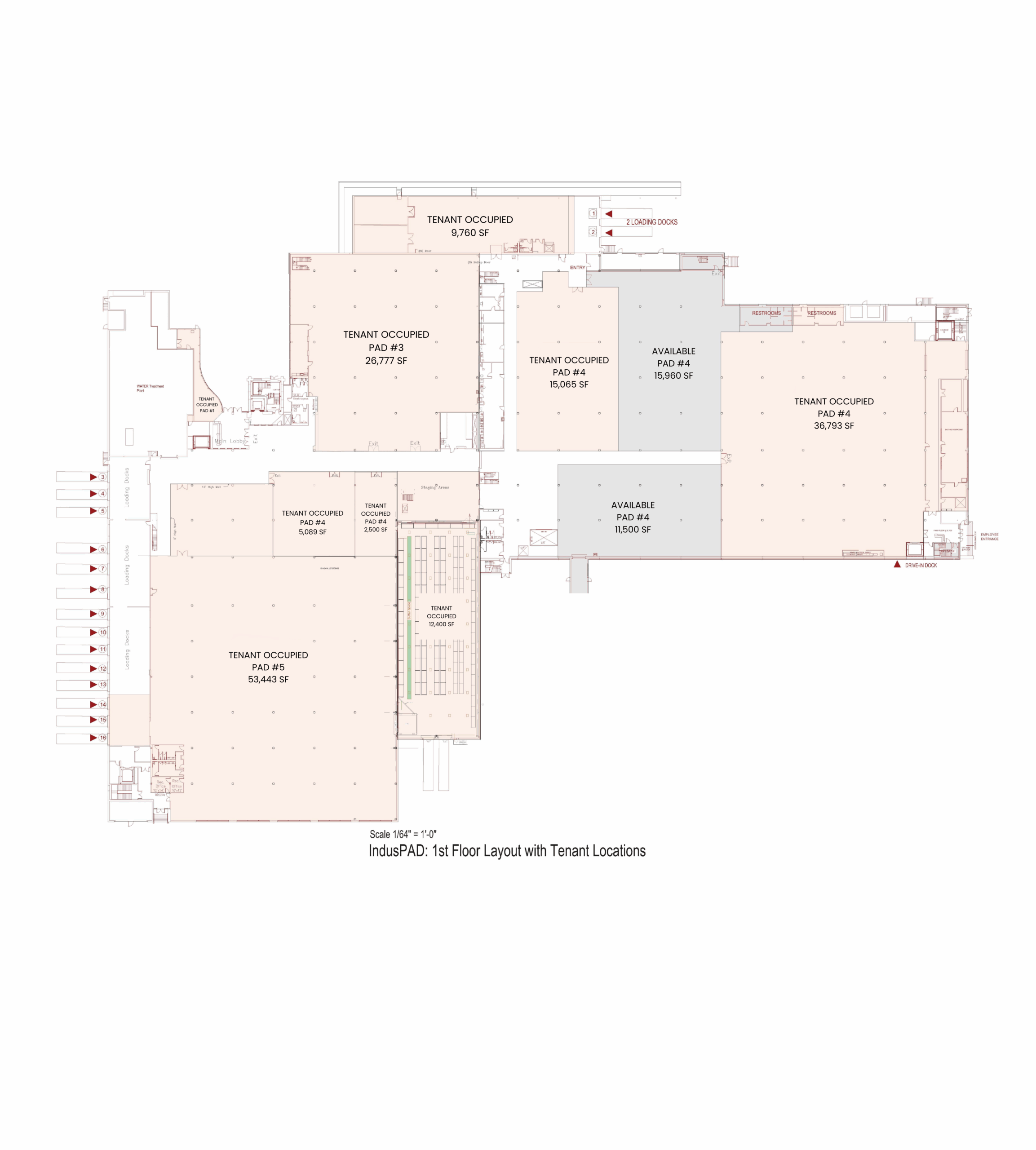
46 Stafford St Lawrence, MA
For Lease | 179,258 SF Industrial Space Available
Essential Information
Transaction Type
Lease
Property Type
Industrial
Total Size
596,181 SF
Total Space Available
179,258 SF
View All Properties
46 Stafford St Lawrence, MA
Lawrence, MA
Property Brochure
Print this page
Contact a Broker
Nicholas Stubblebine
Sam Lockhart
Aryan Mankar
James G. Stubblebine
Chloe Stubblebine
David G. Stubblebine
×
46 Stafford St
Name
*
Email
*
Subject
Message
This field is hidden when viewing the form
Notification Emails
Human or Robot?
Δ